Back ground image of HeroRealtor logo phone_in_talk 065 083 2211 Line application logo HeroRealtor @ Line
链接到 en 本页面的版本。 链接到 th 本页面的版本。 语言标志 zh 当地的

出租 办公室 504 平方米 在 孔堤北 瓦塔纳 曼谷 BTS 阿索克

504 平方米
BTS 车站标志 BTS 阿索克 BTS 车站标志 MRT 素坤逸路 location_on瓦塔纳, 曼谷
฿403,200
办公室 for rent in Watthana, Bangkok - 带灯带的混凝土接待台与装饰墙的前台区域。
办公室 for rent in Watthana, Bangkok - 转角工作区,长窗与光亮地面并通往内侧房间。
办公室 for rent in Watthana, Bangkok - 带分隔房间的开放区与外露工业风天花。
办公室 for rent in Watthana, Bangkok - 茶水吧台配工业风灯具与长凳座位。
办公室 for rent in Watthana, Bangkok - 走廊两侧为会议/办公间,天花装有照明。

查看全部
8 照片

曼谷Watthana区办公空间出租,近BTS Asok与MRT Sukhumvit

在曼谷Watthana区租下这间现代化办公空间,使用面积约504平方米。到达后是带灯带的时尚接待台,随后进入明亮的开放式大厅,沿窗设置采光充足。抛光地面、外露天花与充足的吊灯照明,营造出现代协作氛围,适合团队办公与活动。

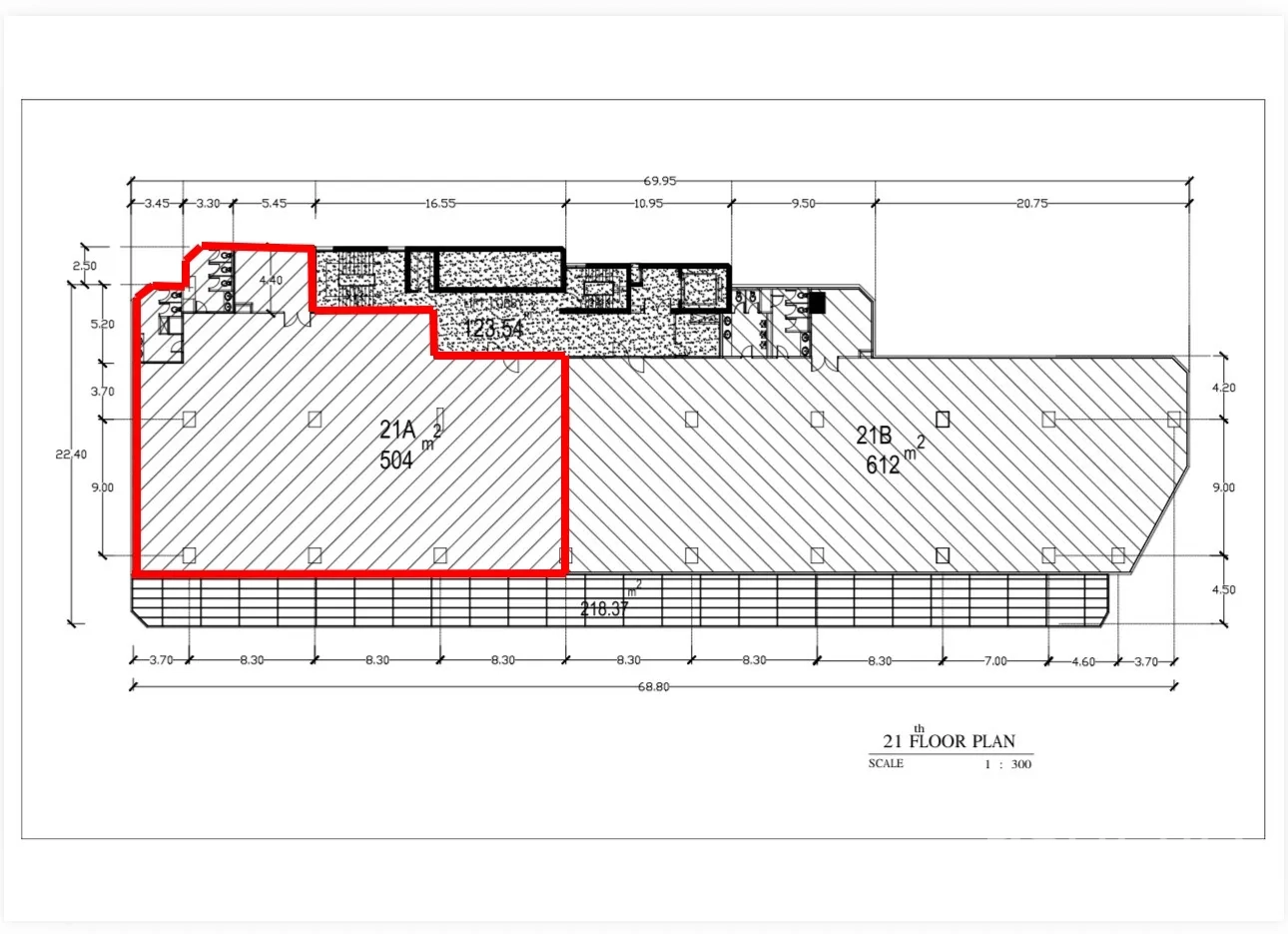
主区旁设有多间分隔房,可作会议或培训使用;长条形茶水吧台成为社交核心;木质阶梯看台适合发布会或团队分享。带轮工作台与长凳便于快速调整布局,墙面工作位提供专注空间。随附的平面图清晰标注约504平方米的布局,便于规划动线与座位。出行便捷,近BTS Asok与MRT Sukhumvit,周边生活配套齐全,如Terminal 21与班加奇蒂公园。若您正在寻找位于曼谷Watthana区、灵活实用的办公空间出租,此物业已准备就绪。欢迎联系预约看房并洽谈租赁。

tag物业编号 HRE00681

Usable size icon 可用尺寸 504 Sqm

history最后更新 2026-04-30

或直接联系我们
phone_in_talk 致电我们 Line logo Line Facebook Messenger logo Messenger WhatsApp logo WhatsApp WeChat logo WeChat
WeChat qrcode for HeroRealtor
close
   
办公室 for rent in Watthana, Bangkok - 带灯带的混凝土接待台与装饰墙的前台区域。
办公室 for rent in Watthana, Bangkok - 转角工作区,长窗与光亮地面并通往内侧房间。
办公室 for rent in Watthana, Bangkok - 带分隔房间的开放区与外露工业风天花。
办公室 for rent in Watthana, Bangkok - 茶水吧台配工业风灯具与长凳座位。
办公室 for rent in Watthana, Bangkok - 走廊两侧为会议/办公间,天花装有照明。
办公室 for rent in Watthana, Bangkok - 明亮开放空间,落地窗、工作台与墙面软包。
办公室 for rent in Watthana, Bangkok - 公共区设木质阶梯看台与长吧台,临窗采光佳。
办公室 for rent in Watthana, Bangkok - 平面图以红线标出约504平方米的办公单元。
check_circle loading spinner

我们将就此房产事宜与您联系。

英雄ID
HRE00681

办公室

英雄ID

HRE00681

出租 办公室 504 平方米 在 孔堤北 瓦塔纳 曼谷 BTS 阿索克

asterisk Please provide at least one means of contacting you.

取消