Back ground image of HeroRealtor logo phone_in_talk 065 083 2211 Line application logo HeroRealtor @ Line
ลิงก์ไปยัง en เวอร์ชันของหน้านี้ ธงภาษาสำหรับ th ท้องถิ่น ลิงก์ไปยัง zh เวอร์ชันของหน้านี้

ให้เช่า ออฟฟิศ 177 ตรม มักกะสัน ราชเทวี กรุงเทพมหานคร BTS อโศก

177 ตร.ม.
โลโก้สถานี BTS BTS อโศก location_onราชเทวี, กรุงเทพมหานคร
฿185,850 เช่า
สำนักงาน ให้เช่าในRatchathewi, Bangkok - ภายในสำนักงานแบบเปิดโล่ง ฝ้าเพดานกริด ไฟ LED พื้นคอนกรีต และหน้าต่างบานใหญ่เห็นวิวเมือง
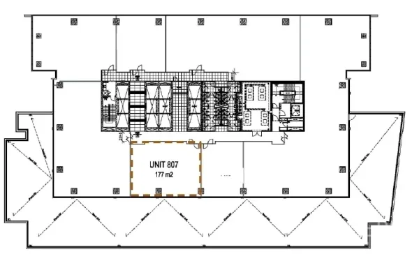
สำนักงาน ให้เช่าในRatchathewi, Bangkok - ผังชั้นแสดงยูนิต 807 พื้นที่สำนักงาน 177 ตร.ม. ติดโถงลิฟต์และโซนบริการ
สำนักงาน ให้เช่าในRatchathewi, Bangkok - พื้นที่สำนักงานเปล่า มีเสากลาง กระจกบานสูงรอบด้าน มองเห็นสกายไลน์ พร้อมตกแต่งได้ตามต้องการ

ให้เช่าสำนักงาน ราชเทวี กรุงเทพฯ | ใกล้ MRT เพชรบุรี & BTS อโศก

ยกระดับธุรกิจของคุณด้วยสำนักงานขนาด 177 ตร.ม. แปลนเปิดโล่ง ใช้งานพื้นที่ได้เต็มประสิทธิภาพ หน้าต่างบานใหญ่รับแสงธรรมชาติพร้อมวิวสกายไลน์ ฝ้าแบบกริดพร้อมไฟ LED และเครื่องปรับอากาศกลางช่วยให้ทำงานสบาย โครงสร้างรูปทรงสี่เหลี่ยมเหมาะสำหรับจัดวางโต๊ะ ห้องประชุม และพื้นที่ต้อนรับ เหมาะกับสตาร์ทอัพและทีมขนาดกลาง มีห้องน้ำส่วนกลางและคอร์เซอร์วิสในชั้นเดียวกัน

ทำเลเพียงไม่กี่ก้าวจาก MRT เพชรบุรี ใกล้ BTS อโศก และแอร์พอร์ตลิงก์ มักกะสัน เดินทางเชื่อมอโศกมนตรีและถนนเพชรบุรีได้สะดวก แวดล้อมด้วย Terminal 21, เซ็นทรัลพระราม 9 และฟอร์จูนทาวน์ สถาบันการศึกษาใกล้เคียงได้แก่ มหาวิทยาลัยศรีนครินทรวิโรฒ และ NIST International School โรงพยาบาลชั้นนำอย่างบำรุงราษฎร์และพระราม 9 อยู่ไม่ไกล พักผ่อนและออกกำลังกายได้ที่สวนเบญจกิติและสนามกีฬากรุงเทพ–ญี่ปุ่น

tagรหัสทรัพย์สิน BRE18910

Usable size icon พื้นที่ใช้สอย 177 ตร.ม.

historyอัปเดตล่าสุด 2026-01-30

หรือติดต่อเราโดยตรง
phone_in_talk โทรหาเรา Line logo Line Facebook Messenger logo Messenger WhatsApp logo WhatsApp WeChat logo WeChat
WeChat qrcode for HeroRealtor

พื้นที่สำนักงานอื่นๆ ให้เช่า ในราชเทวี

สำนักงาน ให้เช่าหรือขายในRatchathewi, Bangkok - โถงทางเข้าประตูกระจกใสลายฟรอสต์ นำสู่ทางเดินสำนักงานสว่าง
เช่า 44,800
ขาย 11,000,000

ดูรายละเอียดอสังหาริมทรัพย์

ให้เช่าหรือขาย ออฟฟิศ 115 ตรม ทุ่งพญาไท ราชเทวี กรุงเทพมหานคร BTS พญาไท

ราชเทวี, กรุงเทพมหานคร

square_foot 115 ตร.ม.

โลโก้สถานี BTS พญาไท

สำนักงาน for rent in Ratchathewi, Bangkok - พื้นที่สำนักงานมุมกระจก พื้นลายก้างปลา มองเห็นวิวสกายไลน์และพื้นที่สีเขียว
เช่า 128,700

ดูรายละเอียดอสังหาริมทรัพย์

ให้เช่า ออฟฟิศ 198 ตรม มักกะสัน ราชเทวี กรุงเทพมหานคร

ราชเทวี, กรุงเทพมหานคร

square_foot 198 ตร.ม.

โลโก้สถานีรถไฟฟ้า MRT เพชรบุรี

สำนักงาน ให้เช่าในRatchathewi, Bangkok - พื้นที่สำนักงานห้องที่สอง พื้นลามิเนตสีอ่อน เชื่อมต่อไปยังโซนทำงานหลัก
เช่า 45,580

ดูรายละเอียดอสังหาริมทรัพย์

ให้เช่า ออฟฟิศ 86 ตรม ถนนเพชรบุรี ราชเทวี กรุงเทพมหานคร BTS ราชเทวี

ราชเทวี, กรุงเทพมหานคร

square_foot 86 ตร.ม.

โลโก้สถานี BTS ราชเทวี

สำนักงาน ให้เช่าหรือขาย - โถงสำนักงานขนาดใหญ่ โล่ง โปร่งสว่าง ด้วยแผงไฟบนเพดาน ช่องลมแอร์ และหน้าต่างรอบด้าน
เช่า 58,450
ขาย 13,500,000

ดูรายละเอียดอสังหาริมทรัพย์

ให้เช่าหรือขาย ออฟฟิศ 149 ตรม ราชเทวี กรุงเทพมหานคร BTS พญาไท

ราชเทวี, กรุงเทพมหานคร

square_foot 149 ตร.ม.

โลโก้สถานี BTS พญาไท

สำนักงาน ให้เช่าในRatchathewi, Bangkok - พื้นที่สำนักงานเปิดโล่ง 130 ตร.ม. กระจกบานใหญ่ แสงธรรมชาติและวิวเมือง.
เช่า 169,000

ดูรายละเอียดอสังหาริมทรัพย์

ให้เช่า ออฟฟิศ 130 ตรม มักกะสัน ราชเทวี กรุงเทพมหานคร BTS อโศก

ราชเทวี, กรุงเทพมหานคร

square_foot 130 ตร.ม.

โลโก้สถานี BTS อโศก โลโก้สถานีรถไฟฟ้า MRT เพชรบุรี

สำนักงาน ให้เช่า - ยูนิตออฟฟิศกระจกเต็มบาน แสงสว่าง เพดานไฟ และพรมลาย มองจากโถงทางเดิน
เช่า 52,650

ดูรายละเอียดอสังหาริมทรัพย์

ให้เช่า ออฟฟิศ 117 ตรม ราชเทวี กรุงเทพมหานคร BTS พญาไท

ราชเทวี, กรุงเทพมหานคร

square_foot 117 ตร.ม.

โลโก้สถานี BTS พญาไท

สำนักงาน ให้เช่าในRatchathewi, Bangkok - โซนพักผ่อนพร้อมเก้าอี้สีสดและโต๊ะกลมข้างผนังกระจก
เช่า 210,600

ดูรายละเอียดอสังหาริมทรัพย์

ให้เช่า ออฟฟิศ 351 ตรม มักกะสัน ราชเทวี กรุงเทพมหานคร BTS อโศก

ราชเทวี, กรุงเทพมหานคร

square_foot 351 ตร.ม.

โลโก้สถานี BTS อโศก โลโก้สถานีรถไฟฟ้า MRT สุขุมวิท

สำนักงาน ให้เช่า - ออฟฟิศแบบโอเพนสเปซสว่าง พื้นลายไม้ ฝ้าที-บาร์ พร้อมกระจกสูงจรดเพดานมองวิวกรุงเทพฯ
เช่า 91,975

ดูรายละเอียดอสังหาริมทรัพย์

ให้เช่า ออฟฟิศ 141 ตรม มักกะสัน ราชเทวี กรุงเทพมหานคร BTS อโศก

ราชเทวี, กรุงเทพมหานคร

square_foot 141 ตร.ม.

โลโก้สถานี BTS อโศก โลโก้สถานีรถไฟฟ้า MRT เพชรบุรี

close
   
สำนักงาน ให้เช่าในRatchathewi, Bangkok - ภายในสำนักงานแบบเปิดโล่ง ฝ้าเพดานกริด ไฟ LED พื้นคอนกรีต และหน้าต่างบานใหญ่เห็นวิวเมือง
สำนักงาน ให้เช่าในRatchathewi, Bangkok - ผังชั้นแสดงยูนิต 807 พื้นที่สำนักงาน 177 ตร.ม. ติดโถงลิฟต์และโซนบริการ
สำนักงาน ให้เช่าในRatchathewi, Bangkok - พื้นที่สำนักงานเปล่า มีเสากลาง กระจกบานสูงรอบด้าน มองเห็นสกายไลน์ พร้อมตกแต่งได้ตามต้องการ
check_circle loading spinner

เราจะติดต่อคุณเกี่ยวกับที่พักแห่งนี้

Hero ID
BRE18910

ออฟฟิศ

Hero ID

BRE18910

ให้เช่า ออฟฟิศ 177 ตรม มักกะสัน ราชเทวี กรุงเทพมหานคร BTS อโศก

asterisk Please provide at least one means of contacting you.

ยกเลิก