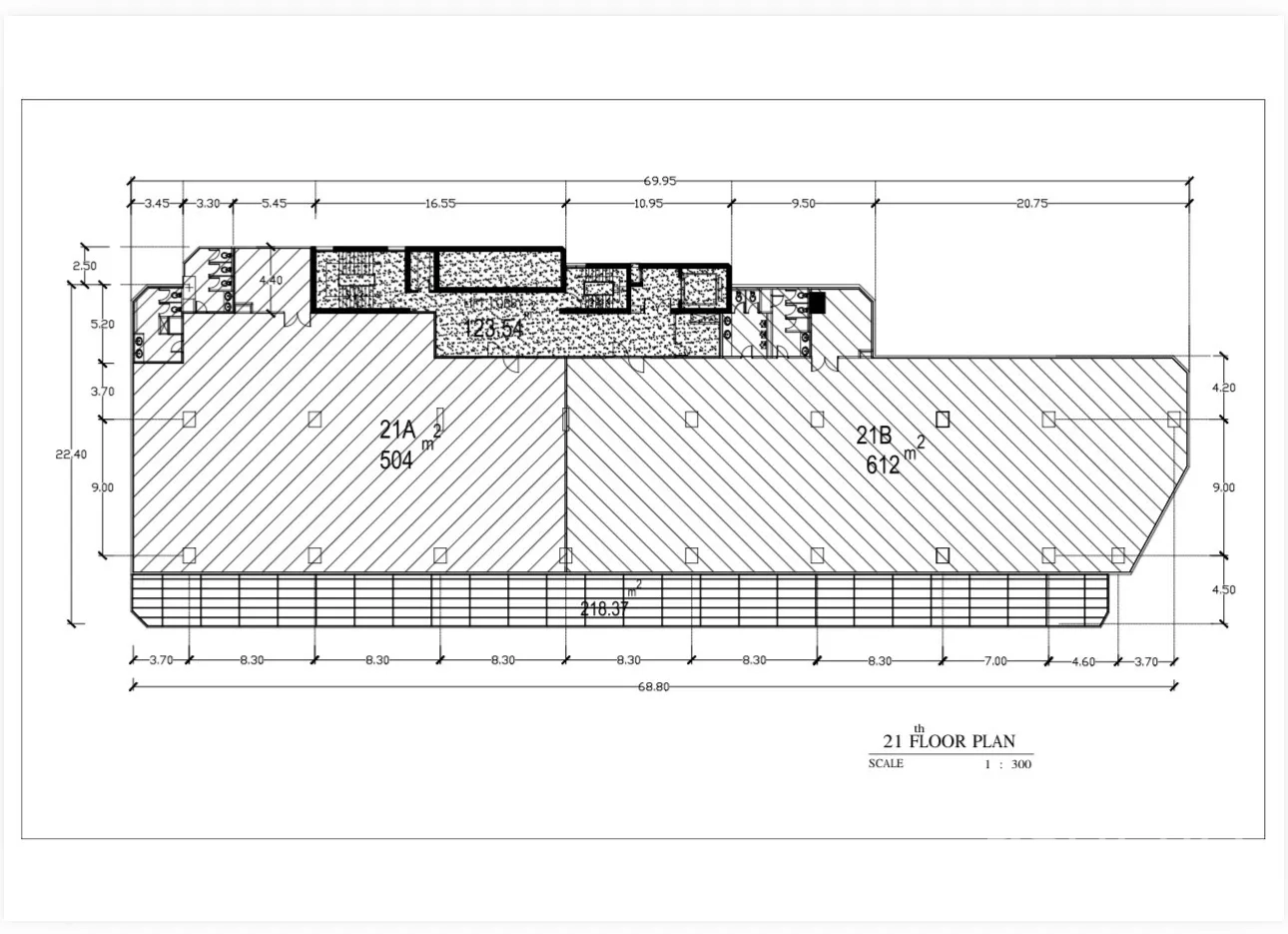
位于曼谷瓦他那区的办公空间出租,使用面积1,116㎡(约279平方哇或0.70莱)。平面图显示空间分为两翼,约504㎡与612㎡,以高效开放式布局为主。室内铺设鱼骨纹地毯,工业风裸顶配悬挂灯具与金属管线,玻璃隔断勾勒协作区。大面积窗户搭配卷帘,引入充足自然光,滑动玻璃门通向室外区域。入口处设接待台与通透隔架,窗边长座提供轻松的休憩与城市景观。
地址位于瓦他那区,步行可达BTS Asok与MRT Sukhumvit,通勤便捷。周边配套齐全,临近著名地标Terminal 21与本贾奇迪公园。开阔的楼层面积便于灵活规划工位、会议角与储物区,非常适合寻求素坤逸核心位置的企业。此办公空间出租现已可看房与定制装修,欢迎预约参观。
瓦塔纳, 曼谷
517 平方米
阿索克
素坤逸路
瓦塔纳, 曼谷
76 平方米
埃卡迈
瓦塔纳, 曼谷
83 平方米
阿索克
瓦塔纳, 曼谷
130 平方米
娜娜
素坤逸路
瓦塔纳, 曼谷
14 平方米
帕卡农
瓦塔纳, 曼谷
135 平方米
埃卡迈
瓦塔纳, 曼谷
21 平方米
埃卡迈
瓦塔纳, 曼谷
830 平方米
阿索克
素坤逸路
英雄ID
HRE00679
办公室
英雄ID
HRE00679
出租 办公室 1116 平方米 在 孔堤北 瓦塔纳 曼谷 BTS 阿索克
Please provide at least one means of contacting you.