Back ground image of HeroRealtor logo phone_in_talk 065 083 2211 Line application logo HeroRealtor @ Line
链接到 en 本页面的版本。 链接到 th 本页面的版本。 语言标志 zh 当地的

出租 零售空间 900 平方米 在 克隆丹努阿 瓦塔纳 曼谷 BTS 澎蓬

900 平方米 0 卧室 0 浴场
BTS 车站标志 BTS 澎蓬 BTS 车站标志 MRT 素坤逸路 location_on瓦塔纳, 曼谷
฿2,250,000
零售空间 出租在Watthana, Bangkok - 曼谷瓦他那区多层零售建筑外立面,拱形主入口与弧形玻璃幕墙。
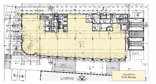
零售空间 出租在Watthana, Bangkok - 零售地面层平面图,展示900平方米开放区域、服务核心与出入口。

出租 900平米商业店铺,瓦他那区,曼谷 | 步行至EmQuartier

在曼谷EM商圈占据优势位置,这处位于瓦他那区的900平米零售空间现正出租。建筑外观现代,设有高挑拱形入口与弧形整面玻璃,街面曝光极佳,适合醒目招牌与橱窗展示。单一大开间、柱少、出入口多,便于打造旗舰店、展厅、诊所或各类生活方式品牌。步行即可到达BTS澎蓬站(Phrom Phong),为顾客与员工提供便捷交通与稳定人流。

周边环绕The Emporium、EmQuartier与全新的Emsphere,以及本查希里公园(Benchasiri Park),并坐落于高端住宅与酒店密集区。附近有Bangkok Prep国际学校与三美泰素坤逸医院,吸引家庭与外籍社群;Virgin Active等健身会所及公园运动设施带来日常客流。把握曼谷核心零售商圈的稀缺铺位,欢迎预约看房。

tag物业编号 BRE25531

square_foot可用尺寸 900 Sqm

Last Updated 2026-02-09

or contact us directly
phone_in_talk Call Us Line logo 线 Facebook Messenger logo Messenger WhatsApp logo WhatsApp WeChat logo 微信
WeChat qrcode for HeroRealtor
close
   
零售空间 出租在Watthana, Bangkok - 曼谷瓦他那区多层零售建筑外立面,拱形主入口与弧形玻璃幕墙。
零售空间 出租在Watthana, Bangkok - 零售地面层平面图,展示900平方米开放区域、服务核心与出入口。
check_circle

We will contact you about this property

英雄ID
BRE25531

零售空间

英雄ID

BRE25531

出租 零售空间 900 平方米 在 克隆丹努阿 瓦塔纳 曼谷 BTS 澎蓬

asterisk Please provide at least one means of contacting you.

取消