Back ground image of HeroRealtor logo phone_in_talk 065 083 2211 Line application logo HeroRealtor @ Line
链接到 en 本页面的版本。 链接到 th 本页面的版本。 语言标志 zh 当地的

出租 工厂 720 平方米 在 邦沙通 北榄府

720 平方米 180 正方形
location_on邦沙通, 北榄府
฿55,000
工厂 出租在Bang Sao Thong, Samut Prakan - 工厂正面,金属推拉门与遮雨装卸区,位于Bang Sao Thong。
工厂 出租在Bang Sao Thong, Samut Prakan - 街景视角的仓库排与大门入口,可临时停车。
工厂 出租在Bang Sao Thong, Samut Prakan - 室内无柱仓储空间,高钢结构桁架屋顶。
工厂 出租在Bang Sao Thong, Samut Prakan - 开阔的工业地面,无中心柱,带通风窗。
工厂 出租在Bang Sao Thong, Samut Prakan - 从仓库内部望向宽敞推拉式大门,便于卡车进出。

查看全部
7 照片

出租:工厂,Bang Sao Thong,Samut Prakan,近ABAC与Mega Bangna

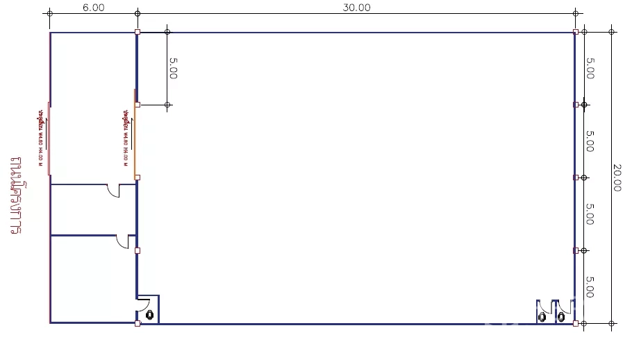
坐落于Bang Sao Thong的紫色工业区,这座720㎡工厂为企业提供高效产储一体空间。20×36米无柱面,屋高约8米,适合轻制造、组装与高位仓储。设有宽大的推拉大门与仓库门,卡车装卸顺畅。供电为MEA三相15/45,可按需升级;配置1间实用办公室,通风砖与采光带让室内明亮通风。

土地面积180平方哇(约720㎡,约0.45莱),区位连接Bang Na–Trat干道与机场物流走廊,毗邻ABAC素万那普校区、Mega Bangna、Chularat 9 Airport Hospital及Summit Windmill高尔夫俱乐部。物业可申请Ror. Ngor. 4工厂许可证,租期3年,押金3个月、预付1个月;水费与垃圾处理按月计费,无公共区费用。立即预约看房,把握北榄府的优质工业基地。

tag物业编号 BRE25158

Usable size icon 可用尺寸 720 Sqm

Land size icon 土地面积 180 Sqw

history最后更新 2025-10-02

特征

或直接联系我们
phone_in_talk 致电我们 Line logo Line Facebook Messenger logo Messenger WhatsApp logo WhatsApp WeChat logo WeChat
WeChat qrcode for HeroRealtor
close
   
工厂 出租在Bang Sao Thong, Samut Prakan - 工厂正面,金属推拉门与遮雨装卸区,位于Bang Sao Thong。
工厂 出租在Bang Sao Thong, Samut Prakan - 街景视角的仓库排与大门入口,可临时停车。
工厂 出租在Bang Sao Thong, Samut Prakan - 室内无柱仓储空间,高钢结构桁架屋顶。
工厂 出租在Bang Sao Thong, Samut Prakan - 开阔的工业地面,无中心柱,带通风窗。
工厂 出租在Bang Sao Thong, Samut Prakan - 从仓库内部望向宽敞推拉式大门,便于卡车进出。
工厂 出租在Bang Sao Thong, Samut Prakan - 办公室房间,瓷砖地、百叶窗与推拉玻璃门。
工厂 出租在Bang Sao Thong, Samut Prakan - 工厂平面图,显示20×36米无柱区与办公区布局。
check_circle loading spinner

我们将就此房产事宜与您联系。

英雄ID
BRE25158

工厂

英雄ID

BRE25158

出租 工厂 720 平方米 在 邦沙通 北榄府

asterisk Please provide at least one means of contacting you.

取消