Back ground image of HeroRealtor logo phone_in_talk 065 083 2211 Line application logo HeroRealtor @ Line
链接到 en 本页面的版本。 链接到 th 本页面的版本。 语言标志 zh 当地的

出租 零售空间 900 平方米 在 克隆丹努阿 瓦塔纳 曼谷 BTS 澎蓬

900 平方米 0 卧室 0 浴场
BTS 车站标志 BTS 澎蓬 location_on瓦塔纳, 曼谷
฿2,250,000
零售空间 出租在Watthana, Bangkok - 开放式一层商用空间,未完成混凝土地面与弧形玻璃立面。
零售空间 出租在Watthana, Bangkok - 高挑层高的毛坯商铺,带弧形落地玻璃门面。
零售空间 出租在Watthana, Bangkok - 室内深进的零售区,可见立柱、外露天花与喷淋管线。
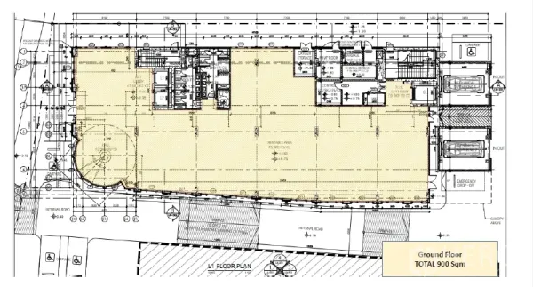
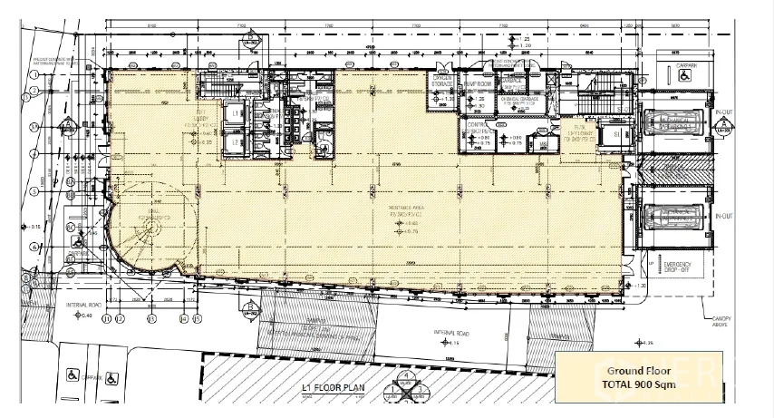
零售空间 出租在Watthana, Bangkok - 首层平面图,标示900平方米可租面积与多处出入口。

出租 零售空间 900㎡,瓦他那,曼谷 – 近BTS澎蓬

把品牌落位于素坤逸核心:瓦他那区900㎡一层零售出租,步行可达BTS澎蓬。铺面毛坯交付,层高充裕,弧形落地玻璃立面带来醒目招牌与展示面。开放式大进深平面支持灵活分区,外露管线与喷淋已到位,便于快速定制装修,适合旗舰店、展厅、生活方式集合店、健身或精品超市。平面图所示多处出入口使人流与动线更顺畅。

项目环绕EM District(Emporium、EmQuartier、Emsphere)、通罗美食街、班嘉诗丽公园与The Racquet Club,全天人流稳定。附近Bangkok Prep小学部与三美泰素坤逸医院带来家庭与白领客群。经素坤逸路与轨道交通出行便捷。欢迎联系曼谷商铺租赁团队预约看铺。

tag物业编号 BRE25016

square_foot可用尺寸 900 Sqm

Last Updated 2025-08-08

or contact us directly
phone_in_talk Call Us Line logo 线 Facebook Messenger logo Messenger WhatsApp logo WhatsApp WeChat logo 微信
WeChat qrcode for HeroRealtor
close
   
零售空间 出租在Watthana, Bangkok - 开放式一层商用空间,未完成混凝土地面与弧形玻璃立面。
零售空间 出租在Watthana, Bangkok - 高挑层高的毛坯商铺,带弧形落地玻璃门面。
零售空间 出租在Watthana, Bangkok - 室内深进的零售区,可见立柱、外露天花与喷淋管线。
零售空间 出租在Watthana, Bangkok - 首层平面图,标示900平方米可租面积与多处出入口。
check_circle

We will contact you about this property

英雄ID
BRE25016

零售空间

英雄ID

BRE25016

出租 零售空间 900 平方米 在 克隆丹努阿 瓦塔纳 曼谷 BTS 澎蓬

asterisk Please provide at least one means of contacting you.

取消