Back ground image of HeroRealtor logo phone_in_talk 065 083 2211 Line application logo HeroRealtor @ Line
链接到 en 本页面的版本。 链接到 th 本页面的版本。 语言标志 zh 当地的

出租 店屋 620 平方米 在 巴吞旺 曼谷

620 平方米 31 正方形
location_on巴吞旺, 曼谷
฿232,500
店屋 出租在Pathum Wan, Bangkok - 多层商铺外立面斜角视图,配大面积展示窗与简洁线条。
店屋 出租在Pathum Wan, Bangkok - 现代转角商铺外观,整面落地玻璃与蓝色雨棚,位于曼谷。
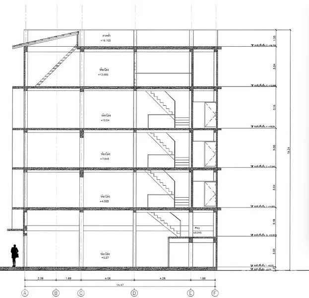
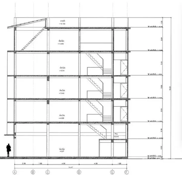
店屋 出租在Pathum Wan, Bangkok - 多层商铺剖面图,显示内部楼梯与各楼层标注。

出售 商铺,巴吞旺,曼谷,近华南蓬站

这座位于巴吞旺的高曝光转角商铺,为品牌展示提供理想舞台。总可用面积约620平方米,土地面积31平方哇(约124平方米,约0.08莱)。现代外立面采用宽幅玻璃,适合陈列与招牌展示;内部楼梯连通各层,灵活满足零售、展厅、办公或工作室等多元用途。

周边配套齐全,距华南蓬火车站与MRT地铁仅数分钟;临近朱拉隆功大学与Triam Udom Suksa名校。购物地标MBK Center、暹罗百丽宫、Siam Center及Samyan Mitrtown近在咫尺,朱拉隆功纪念医院与国家体育场/素帕猜拉赛体育场亦便利可达。区位通达,人流稳定,物流便捷。欢迎联系预约实地参观。

tag物业编号 BRE21809

Usable size icon 可用尺寸 620 Sqm

Land size icon 土地面积 31 Sqw

history最后更新 2025-08-26

或直接联系我们
phone_in_talk 致电我们 Line logo Line Facebook Messenger logo Messenger WhatsApp logo WhatsApp WeChat logo WeChat
WeChat qrcode for HeroRealtor
close
   
店屋 出租在Pathum Wan, Bangkok - 多层商铺外立面斜角视图,配大面积展示窗与简洁线条。
店屋 出租在Pathum Wan, Bangkok - 现代转角商铺外观,整面落地玻璃与蓝色雨棚,位于曼谷。
店屋 出租在Pathum Wan, Bangkok - 多层商铺剖面图,显示内部楼梯与各楼层标注。
check_circle loading spinner

我们将就此房产事宜与您联系。

英雄ID
BRE21809

店屋

英雄ID

BRE21809

出租 店屋 620 平方米 在 巴吞旺 曼谷

asterisk Please provide at least one means of contacting you.

取消