Back ground image of HeroRealtor logo phone_in_talk 065 083 2211 Line application logo HeroRealtor @ Line
链接到 en 本页面的版本。 链接到 th 本页面的版本。 语言标志 zh 当地的

出租 零售空间 76 平方米 在 巴吞旺 曼谷 BTS 奔七

76 平方米
BTS 车站标志 BTS 奔七 location_on巴吞旺, 曼谷
฿121,600
零售空间 出租 - 76平米毛坯零售单元,外露混凝土顶与砖块墙体,可见红色管线。
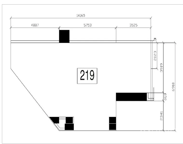
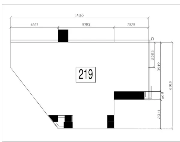
零售空间 出租 - 219号商铺平面图,展示不规则开放式布局与尺寸标注。

出租零售商铺,曼谷帕吞旺 | 步行至BTS Phloen Chit

这间76平米零售商铺位于曼谷帕吞旺核心区,距BTS Phloen Chit步行可达。房间为毛坯交付,开放式空间、挑高外露顶面与到位管线,便于按品牌需求快速定制装修。地段醒目、人流稳定,适合精品店、咖啡馆或专业服务门店。

周边高端配套齐全:Central Embassy、Central Chidlom、Gaysorn Village 与 All Seasons Place近在咫尺。医疗资源包括康民国际医院与朱拉隆功纪念医院;教育资源有Mater Dei School及朱拉隆功大学。临近隆比尼公园与皇家曼谷运动俱乐部,休闲与运动便捷。把握Wireless Road黄金商圈的曝光与客流,立即预约看铺。

tag物业编号 BRE20034

Usable size icon 可用尺寸 76 平方米

history最后更新 2025-08-17

或直接联系我们
phone_in_talk 致电我们 Line logo Line Facebook Messenger logo Messenger WhatsApp logo WhatsApp WeChat logo WeChat
WeChat qrcode for HeroRealtor
close
   
零售空间 出租 - 76平米毛坯零售单元,外露混凝土顶与砖块墙体,可见红色管线。
零售空间 出租 - 219号商铺平面图,展示不规则开放式布局与尺寸标注。
check_circle loading spinner

我们将就此房产事宜与您联系。

英雄ID
BRE20034

零售空间

英雄ID

BRE20034

出租 零售空间 76 平方米 在 巴吞旺 曼谷 BTS 奔七

asterisk Please provide at least one means of contacting you.

取消