Back ground image of HeroRealtor logo phone_in_talk 065 083 2211 Line application logo HeroRealtor @ Line
链接到 en 本页面的版本。 链接到 th 本页面的版本。 语言标志 zh 当地的

出租 办公室 148 平方米 在 你的丹 你的丹 曼谷

148 平方米 0 卧室 0 浴场
BTS 车站标志 MRT 泰国文化中心 location_on你的丹, 曼谷
฿140,000
办公空间 出租在Din Daeng, Bangkok - 宽敞入口空间,白色墙面、木地板与玻璃双开门。
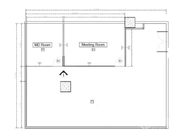
办公空间 出租在Din Daeng, Bangkok - 办公室平面图,含经理室、会议室及大面积开放式办公区。
办公空间 出租在Din Daeng, Bangkok - 转角办公室,落地窗与木地板,俯瞰曼谷城市天际线。
办公空间 出租在Din Daeng, Bangkok - 开放式办公区,配全高玻璃隔间会议室,可观城市景观。
办公空间 出租在Din Daeng, Bangkok - 采光充足的玻璃墙工作区,带玻璃门与充足自然光。

查看全部
6 照片

出租:办公室 丁丹区 曼谷——近泰国文化中心地铁站

这套约148㎡的现代办公室位于曼谷丁丹区,距MRT泰国文化中心站仅数步之遥。高楼层转角单位采光极佳,拥有开阔城市景观与温润木地板。平面布局实用,设有经理室与玻璃隔间会议室,搭配灵活开放空间,适合需要专业形象与高效率团队的企业。大楼提供专业物业管理与24小时安保。

区位便捷,临近拉差达披色、拉玛九与阿索克。周边配套齐全,步行可至Central Plaza Grand Rama 9、Fortune Town、The Esplanade Ratchada与The Street Ratchada。教育资源包括KIS国际学校、Regent’s国际学校及泰国商会大学;医疗有拉玛九医院与Piyavate医院;运动休闲可前往泰日青年中心体育场。优质曼谷办公选址,月租140,000泰铢,交通与配套一应俱全。

tag物业编号 BRE19842

square_foot可用尺寸 148 Sqm

Last Updated 2026-02-12

or contact us directly
phone_in_talk Call Us Line logo 线 Facebook Messenger logo Messenger WhatsApp logo WhatsApp WeChat logo 微信
WeChat qrcode for HeroRealtor
close
   
办公空间 出租在Din Daeng, Bangkok - 宽敞入口空间,白色墙面、木地板与玻璃双开门。
办公空间 出租在Din Daeng, Bangkok - 办公室平面图,含经理室、会议室及大面积开放式办公区。
办公空间 出租在Din Daeng, Bangkok - 转角办公室,落地窗与木地板,俯瞰曼谷城市天际线。
办公空间 出租在Din Daeng, Bangkok - 开放式办公区,配全高玻璃隔间会议室,可观城市景观。
办公空间 出租在Din Daeng, Bangkok - 采光充足的玻璃墙工作区,带玻璃门与充足自然光。
办公空间 出租在Din Daeng, Bangkok - 办公室入口区,木地板、嵌入式照明与双扇玻璃门。
check_circle

We will contact you about this property

英雄ID
BRE19842

办公室

英雄ID

BRE19842

出租 办公室 148 平方米 在 你的丹 你的丹 曼谷

asterisk Please provide at least one means of contacting you.

取消