Back ground image of HeroRealtor logo phone_in_talk 065 083 2211 Line application logo HeroRealtor @ Line
链接到 en 本页面的版本。 链接到 th 本页面的版本。 语言标志 zh 当地的

出租 零售空间 68 平方米 在 克隆丹努阿 瓦塔纳 曼谷 BTS 通罗

68 平方米 0 卧室 0 浴场
BTS 车站标志 BTS 通罗 location_on瓦塔纳, 曼谷
฿97,040
零售空间 出租在Khlong Toei, Bangkok - 商场走道旁的玻璃门面商铺,暖色灯光与咖啡式座位区。
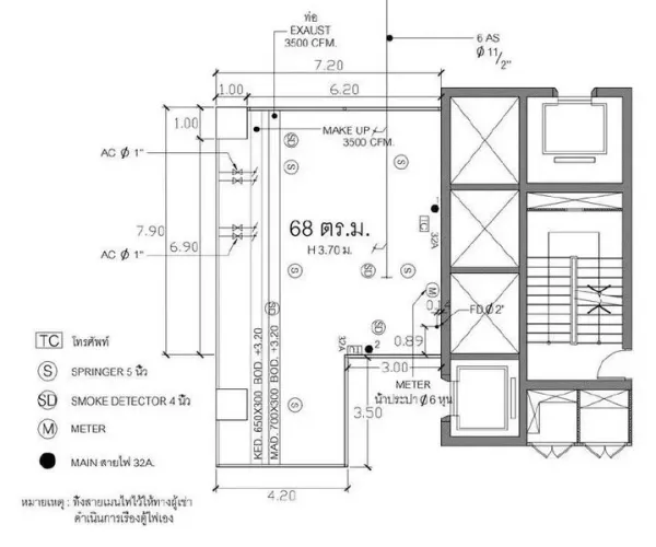
零售空间 出租在Khlong Toei, Bangkok - 68平方米零售铺位平面图,开放式布局与服务核心。

出租 零售商铺 空堤区,曼谷 – 靠近BTS通罗与EmQuartier

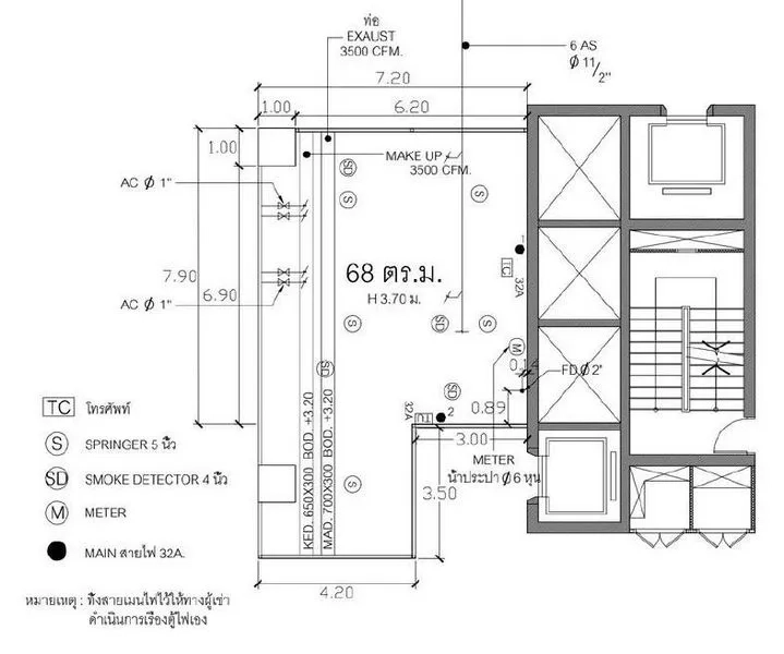
距离BTS通罗站步行不远,这间68㎡商铺位于管理良好的商场内,曝光率高。通高玻璃门面与暖色照明营造吸引力,并可设置咖啡式座位。内部为开放式格局,层高约3.7米,适合餐饮、精品或服务型品牌。平面图显示已预留通风、喷淋和烟感系统,运营更安心。

周边覆盖热门地标:一站即达EmQuartier与Emporium,J Avenue与Eight Thonglor带来稳定客流。附近学校如Bangkok Prep与Wells国际学校贡献工作日需求;三美泰素坤逸医院、The Racquet Club以及班贾西里公园进一步扩大全周客群。欢迎预约看铺,抢占通罗核心商圈位置。

tag物业编号 BRE18464

square_foot可用尺寸 68 Sqm

Last Updated 2026-01-26

or contact us directly
phone_in_talk Call Us Line logo 线 Facebook Messenger logo Messenger WhatsApp logo WhatsApp WeChat logo 微信
WeChat qrcode for HeroRealtor
close
   
零售空间 出租在Khlong Toei, Bangkok - 商场走道旁的玻璃门面商铺,暖色灯光与咖啡式座位区。
零售空间 出租在Khlong Toei, Bangkok - 68平方米零售铺位平面图,开放式布局与服务核心。
check_circle

We will contact you about this property

英雄ID
BRE18464

零售空间

英雄ID

BRE18464

出租 零售空间 68 平方米 在 克隆丹努阿 瓦塔纳 曼谷 BTS 通罗

asterisk Please provide at least one means of contacting you.

取消