Back ground image of HeroRealtor logo phone_in_talk 065 083 2211 Line application logo HeroRealtor @ Line
链接到 en 本页面的版本。 链接到 th 本页面的版本。 语言标志 zh 当地的

出租 零售空间 44 平方米 在 帕卡侬努亚 瓦塔纳 曼谷 BTS 埃卡迈

44 平方米 0 卧室 0 浴场
BTS 车站标志 BTS 埃卡迈 location_on瓦塔纳, 曼谷
฿30,000
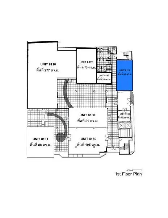
零售空间 出租在Watthana, Bangkok - 一层平面图,蓝色标注的44㎡零售单元,邻近公共走道与服务区。

出租 零售商铺,瓦他那区,曼谷,邻近BTS Ekkamai

这间位于曼谷瓦他那区的一层44㎡零售铺位,助您在热闹的Ekkamai脱颖而出。方正高效的开间适合咖啡、精品店、诊所或各类服务业。平面图显示铺位邻近公共走道与服务中庭,收货动线便利,同时为门头与橱窗提供良好曝光。层高通透、视线开阔,有利于陈列与客户动线优化。

步行即可到达BTS Ekkamai站,连接稳定的通勤与社区客流。周边配套完善:Gateway Ekkamai购物中心、Major Cineplex影院以及Thonglor–Ekkamai餐饮街区;教育资源包括Ekkamai International School与Bangkok Prep;医疗有素坤逸医院与三美泰素坤逸医院。Benjasiri公园乘坐几站即达,适合运动与活动。欢迎联系预约看铺,把握优质一层商位。

tag物业编号 BRE16051

square_foot可用尺寸 44 Sqm

Last Updated 2021-08-10

or contact us directly
phone_in_talk Call Us Line logo 线 Facebook Messenger logo Messenger WhatsApp logo WhatsApp WeChat logo 微信
WeChat qrcode for HeroRealtor
close
   
零售空间 出租在Watthana, Bangkok - 一层平面图,蓝色标注的44㎡零售单元,邻近公共走道与服务区。
check_circle

We will contact you about this property

英雄ID
BRE16051

零售空间

英雄ID

BRE16051

出租 零售空间 44 平方米 在 帕卡侬努亚 瓦塔纳 曼谷 BTS 埃卡迈

asterisk Please provide at least one means of contacting you.

取消