Back ground image of HeroRealtor logo phone_in_talk 065 083 2211 Line application logo HeroRealtor @ Line
链接到 en 本页面的版本。 链接到 th 本页面的版本。 语言标志 zh 当地的

出租 仓库 5000 平方米 在 王诺伊 帕那空西阿瑜陀耶

5,000 平方米 1,400 正方形
location_on王诺伊, 帕那空西阿瑜陀耶
฿600,000
货栈 出租在Phra Nakhon Si Ayutthaya - 金属板外墙的大型仓库与带顶装卸月台及宽阔硬化场地的全景。
货栈 出租在Phra Nakhon Si Ayutthaya - 仓库正立面,深挑檐与停在装卸口前的车辆。
货栈 出租在Phra Nakhon Si Ayutthaya - 侧视图,卡车坡道通向钢结构屋顶下的升高月台。
货栈 出租在Phra Nakhon Si Ayutthaya - 仓库内部开阔,钢桁架高顶与光滑混凝土地面。
货栈 出租在Phra Nakhon Si Ayutthaya - 宽阔储存大厅,高柱与明亮条形灯,跨度清爽。

查看全部
14 照片

出租仓库 旺诺伊,大城府—3个装卸月台 近帕霍洛约廷路

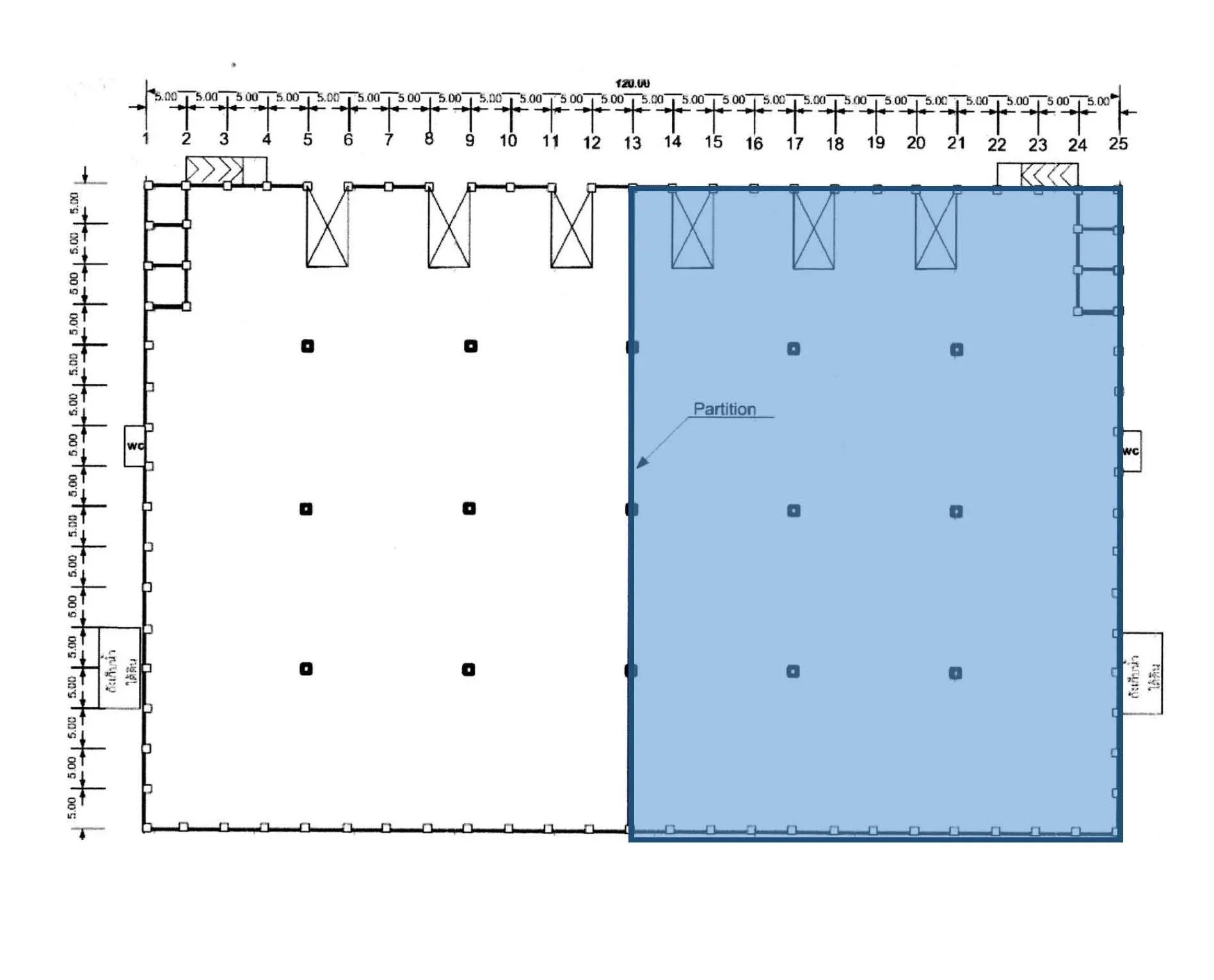
位于大城府旺诺伊区Lam Sai的5,000㎡物流仓库出租。土地1,400平方哇(约5,600㎡,约3.5莱)。仓内净高13–18米,地面承载5吨/㎡,建筑占地约80×60米。1.3米升高月台、3个5×6米遮棚装卸口及一条卡车坡道,明显提升装卸效率。约200㎡采光良好的两层办公室,另设仓外与办公室卫生间,三相150A电力满足多样设备需求。

项目紧邻帕霍洛约廷路,快速连接AH2与9号高速。周边有Makro旺诺伊、Lotus’s旺诺伊、旺诺伊医院与Wang Noi Pittayakom学校;驾车可达法政大学兰实校区、法政体育场及Future Park Rangsit。租金120泰铢/㎡/月,租期3年,押3付1;水电按表计费,承租方承担土地与建筑税。欢迎预约看房。

tag物业编号 BRE15572

Usable size icon 可用尺寸 5,000 平方米

Land size icon 土地面积 1,400 正方形

history最后更新 Over one year ago

特征

或直接联系我们
phone_in_talk 致电我们 Line logo Line Facebook Messenger logo Messenger WhatsApp logo WhatsApp WeChat logo WeChat
WeChat qrcode for HeroRealtor
close
   
货栈 出租在Phra Nakhon Si Ayutthaya - 金属板外墙的大型仓库与带顶装卸月台及宽阔硬化场地的全景。
货栈 出租在Phra Nakhon Si Ayutthaya - 仓库正立面,深挑檐与停在装卸口前的车辆。
货栈 出租在Phra Nakhon Si Ayutthaya - 侧视图,卡车坡道通向钢结构屋顶下的升高月台。
货栈 出租在Phra Nakhon Si Ayutthaya - 仓库内部开阔,钢桁架高顶与光滑混凝土地面。
货栈 出租在Phra Nakhon Si Ayutthaya - 宽阔储存大厅,高柱与明亮条形灯,跨度清爽。
货栈 出租在Phra Nakhon Si Ayutthaya - 室内角度,展示天窗带、墙面板与多樘卷门。
货栈 出租在Phra Nakhon Si Ayutthaya - 设有凹式装卸坑的仓库地面与大片净空区。
货栈 出租在Phra Nakhon Si Ayutthaya - 工业三相电配电柜与插座的特写。
货栈 出租在Phra Nakhon Si Ayutthaya - 升高平台仓库区域,旁接玻璃幕墙办公室。
货栈 出租在Phra Nakhon Si Ayutthaya - 装卸坑细节,带梯子与橡胶缓冲垫。
货栈 出租在Phra Nakhon Si Ayutthaya - 采光良好的两层办公室,瓷砖地与窗户。
货栈 出租在Phra Nakhon Si Ayutthaya - 一层办公室,玻璃入口门与通往二层的楼梯。
货栈 出租在Phra Nakhon Si Ayutthaya - 干净的瓷砖卫生间,设洗手台、小便斗与隔间。
货栈 出租在Phra Nakhon Si Ayutthaya - 平面图,突出显示可租赁的仓库区域。
check_circle loading spinner

我们将就此房产事宜与您联系。

英雄ID
BRE15572

仓库

英雄ID

BRE15572

出租 仓库 5000 平方米 在 王诺伊 帕那空西阿瑜陀耶

asterisk Please provide at least one means of contacting you.

取消