Back ground image of HeroRealtor logo phone_in_talk 065 083 2211 Line application logo HeroRealtor @ Line
Language Flag for en locale Link to th version of this page. Link to zh version of this page.

For rent Warehouse 700 sqm in Bang Phli, Samut Prakan

700 Sqm 200 Sqw
location_onBang Phli, Samut Prakan
฿84,000 RENT
Warehouse for rent in Bang Phli, Samut Prakan - Modern warehouse exterior with curved metal roof, wide driveway and multiple roller shutter doors.
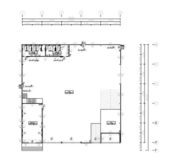
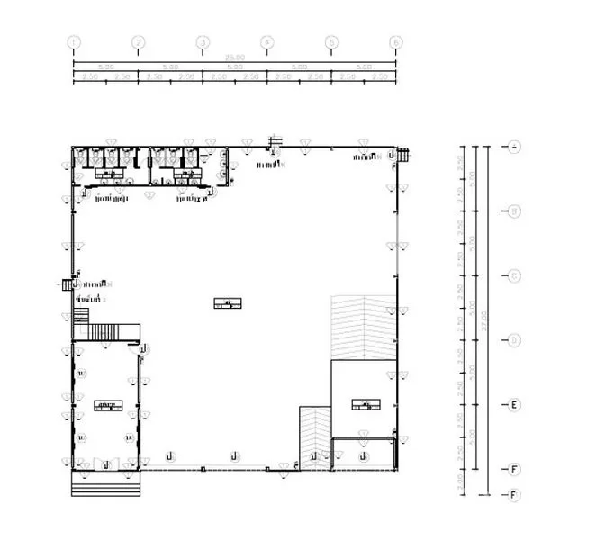
Warehouse for rent in Bang Phli, Samut Prakan - Warehouse floor plan showing a large open storage hall with offices and restrooms.
Warehouse for rent in Bang Phli, Samut Prakan - Spacious warehouse interior with high steel truss ceiling and polished concrete floor.
Warehouse for rent in Bang Phli, Samut Prakan - Interior angle of the warehouse showing high windows, bright lighting, emergency doors and a stair to office.
Warehouse for rent in Bang Phli, Samut Prakan - Warehouse hall with several loading shutters and a two-storey internal office block.

View all
11 Photos

For Rent: Warehouse, Bang Phli, Samut Prakan – near Mega Bangna & Suvarnabhumi

Modern 700 sqm warehouse for rent in Bang Phli, Samut Prakan. Set on 200 sq wah (approx. 800 sqm or 0.5 rai), this facility features a high-clearance steel structure, polished concrete floor and excellent natural light. Multiple roller shutters and covered loading bays support smooth in‑out operations, while a two‑storey internal office provides meeting and admin space. Restrooms, power points and fire safety equipment are in place, with ample truck access and parking.

The location places you minutes from Bang Na–Trat and Kingkaew roads with fast links to Suvarnabhumi Airport. Shopping and dining are close by at Mega Bangna, IKEA Bangna and Central Village. Education hubs such as Huachiew Chalermprakiet University and Assumption University Suvarnabhumi are convenient, and healthcare is served by Bangna 2 Hospital and Vibharam Chaiprakarn Hospital. For recreation and client entertainment, Thana City Country Club and Summit Windmill Golf Club are nearby. Ideal for distribution, e‑commerce or light production.

tagProperty ID BRE18182

Usable size icon Usable Size 700 Sqm

Land size icon Land Size 200 Sqw

historyLast Updated Over one year ago

or contact us directly
phone_in_talk Call Us Line logo Line Facebook Messenger logo Messenger WhatsApp logo WhatsApp WeChat logo WeChat
WeChat qrcode for HeroRealtor
close
   
Warehouse for rent in Bang Phli, Samut Prakan - Modern warehouse exterior with curved metal roof, wide driveway and multiple roller shutter doors.
Warehouse for rent in Bang Phli, Samut Prakan - Warehouse floor plan showing a large open storage hall with offices and restrooms.
Warehouse for rent in Bang Phli, Samut Prakan - Spacious warehouse interior with high steel truss ceiling and polished concrete floor.
Warehouse for rent in Bang Phli, Samut Prakan - Interior angle of the warehouse showing high windows, bright lighting, emergency doors and a stair to office.
Warehouse for rent in Bang Phli, Samut Prakan - Warehouse hall with several loading shutters and a two-storey internal office block.
Warehouse for rent in Bang Phli, Samut Prakan - Clear-span floor area with steel stair to mezzanine office and large loading doors.
Warehouse for rent in Bang Phli, Samut Prakan - Close-up of the two-storey office unit inside the warehouse with exterior staircase.
Warehouse for rent in Bang Phli, Samut Prakan - Ground-floor office space with glossy tiled floor and glass front entrance.
Warehouse for rent in Bang Phli, Samut Prakan - Empty white office room with windows on both sides and ceramic tiled flooring.
Warehouse for rent in Bang Phli, Samut Prakan - Bright office level with recessed lighting and multiple windows for natural light.
Warehouse for rent in Bang Phli, Samut Prakan - Office room with windows, downlights and an emergency exit door inside the warehouse.
check_circle loading spinner

We will contact you about this property

Hero ID
BRE18182

Warehouse

Hero ID

BRE18182

For rent Warehouse 700 sqm in Bang Phli, Samut Prakan

asterisk Please provide at least one means of contacting you.

Cancel