For Rent Standalone Factory/Warehouse in Bang Sao Thong, Samut Prakan – Purple Zone Near Bang Na-Trad Road
Spacious factory/warehouse for rent in a prime industrial area of Bang Sao Thong, Samut Prakan. Located in a purple zone, suitable for applying for a Factory License (Ror Ngor 4). Convenient access from Bang Na-Trad Road, ideal for manufacturing or distribution center operations.
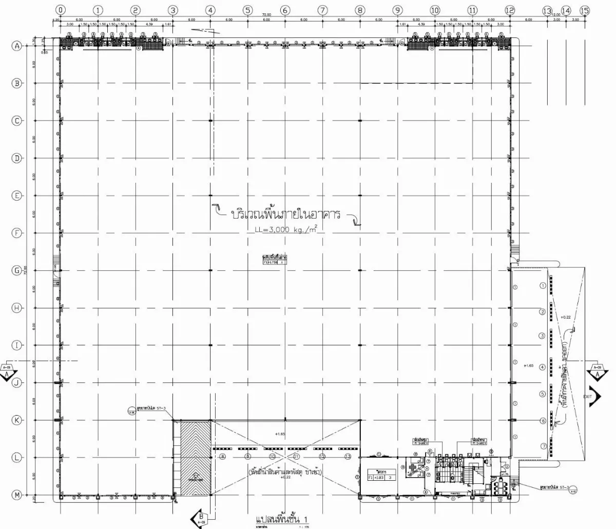
Property Details
-
Land area: 6 rai 371.5 sq.wah
-
Total usable area: 5,508 sqm
(Ground floor: 5,364 sqm + Mezzanine: 144 sqm) -
Office area: 288 sqm
-
Floor loading capacity: 3 tons/sqm
-
Clear height: 12 meters
- Electricity: 3 Phase 315 kVA
-
4 loading docks for 40-ft containers (dock height 1.5 m)
-
7 loading docks for pickup trucks
-
Located in purple zone – eligible for Factory License (Ror Ngor 4)
-
Easy access from Bang Na–Trad Road
Rental Terms
-
Rental rate: 826,200 THB/month (150 THB/sqm)
-
Security deposit: 3 months + 1 month advance payment
-
Minimum lease term: 3 years
-
Available from January 15, 2026 (under renovation)
















